Projekt domu PD069

5391

Property ID

10 m2

Size

6

Bedrooms

216 000€

Popis

Pri tomto projekte ponúkame MOŽNOSŤ BEZPLATNEJ ZMENY DISPOZÍCIE! Pri každom projekte sme sa snažili vymyslieť tú najlepšiu dispozíciu aká je vzhľadom na vonkajší rozmer domu možná. Ale aj napriek tomu je často potrebné dispozíciu domu upraviť s ohľadom na osadenie domu na pozemok, preferencie klienta alebo stavebný systémn. Ponúkame Vám preto možnosť bezplatnej zmeny dispozície každého nášho projektu tak aby vyhovoval vašim potrebám. Zmenou dispozície myslíme posuny nenostných priečok, zmenu umiestnenia a veľkosti okien, interierových dverí a rozvodov inštalácií.
Pre viac info nás neváhajte kontaktovať.

Parametre

  • Cena projektu domu 2500 €
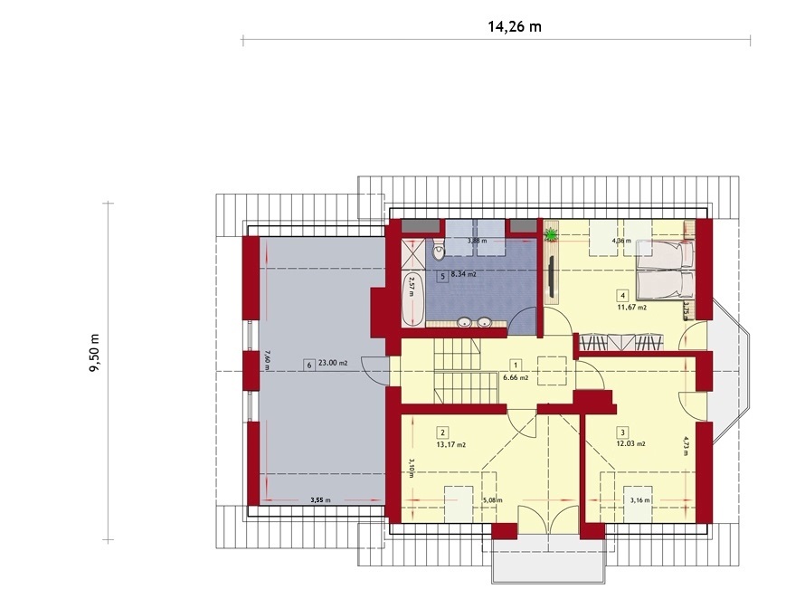
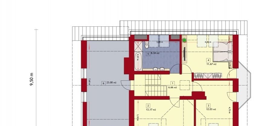
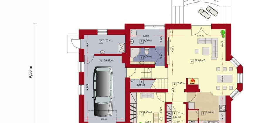
  • Úžítková plocha 171 m2
  • Zrkadlový obraz áno
  • Cena výstavby domu 216 000€
  • Typ Poschodový
  • Počet miestností 6
  • Šírka domu 10 m
  • Zastavaná plocha domu 132 m2
  • Garáž 1

Kontakt