Popis
Pri tomto projekte ponúkame MOŽNOSŤ BEZPLATNEJ ZMENY DISPOZÍCIE! Pri každom projekte sme sa snažili vymyslieť tú najlepšiu dispozíciu aká je vzhľadom na vonkajší rozmer domu možná. Ale aj napriek tomu je často potrebné dispozíciu domu upraviť s ohľadom na osadenie domu na pozemok, preferencie klienta alebo stavebný systém. Ponúkame Vám preto možnosť bezplatnej zmeny dispozície každého nášho projektu tak aby vyhovoval vašim potrebám. Zmenou dispozície myslíme posuny nenosných priečok, zmenu umiestnenia a veľkosti okien, interiérových dverí a rozvodov inštalácií.
Pre viac info nás neváhajte kontaktovať.
Parametre
- Cena projektu domu 1250 €
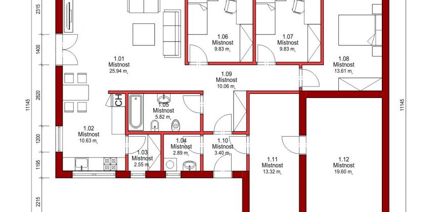
- Úžítková plocha 127 m2
- Zrkadlový obraz áno
- Cena výstavby domu 117 300€
- Typ Bungalov
- Počet miestností 5
- Šírka domu 11 m
- Zastavaná plocha domu 147 m2
- Garáž 1