Projekt domu PD192

6296

Property ID

10 m2

Size

4

Bedrooms

99 700€

Popis

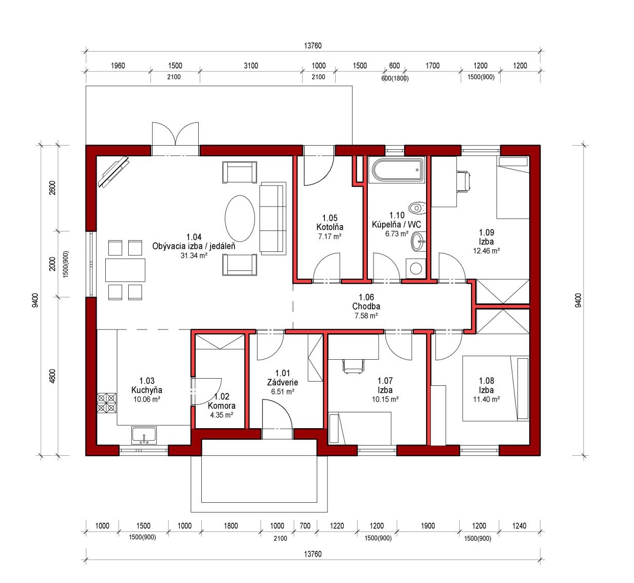
Pri tomto projekte ponúkame MOŽNOSŤ BEZPLATNEJ ZMENY DISPOZÍCIE! Pri každom projekte sme sa snažili vymyslieť tú najlepšiu dispozíciu aká je vzhľadom na vonkajší rozmer domu možná. Ale aj napriek tomu je často potrebné dispozíciu domu upraviť s ohľadom na osadenie domu na pozemok, preferencie klienta alebo stavebný systém. Ponúkame Vám preto možnosť bezplatnej zmeny dispozície každého nášho projektu tak aby vyhovoval vašim potrebám. Zmenou dispozície myslíme posuny nenosných priečok, zmenu umiestnenia a veľkosti okien, interiérových dverí a rozvodov inštalácií.
Pre viac info nás neváhajte kontaktovať.

Parametre

  • Cena projektu domu 1150 €
  • Úžítková plocha 108 m2
  • Zrkadlový obraz áno
  • Cena výstavby domu 99 700€
  • Typ Bungalov
  • Počet miestností 4
  • Šírka domu 10 m
  • Zastavaná plocha domu 123 m2

Kontakt