Projekt domu PD222

7034

Property ID

11 m2

Size

4

Bedrooms

120 900€

Popis

Pri tomto projekte ponúkame MOŽNOSŤ BEZPLATNEJ ZMENY DISPOZÍCIE! Pri každom projekte sme sa snažili vymyslieť tú najlepšiu dispozíciu aká je vzhľadom na vonkajší rozmer domu možná. Ale aj napriek tomu je často potrebné dispozíciu domu upraviť s ohľadom na osadenie domu na pozemok, preferencie klienta alebo stavebný systém. Ponúkame Vám preto možnosť bezplatnej zmeny dispozície každého nášho projektu tak aby vyhovoval vašim potrebám. Zmenou dispozície myslíme posuny nenosných priečok, zmenu umiestnenia a veľkosti okien, interiérových dverí a rozvodov inštalácií.
Cena výstavby uvedená pri projekte je za prevedenie kategórie A1 na kľúč, bez interiérového vybavenia, bez základov. Pre viac informácií a aktualizáciu ceny nás prosím kontaktujte.

Parametre

  • Cena projektu domu 1450 €
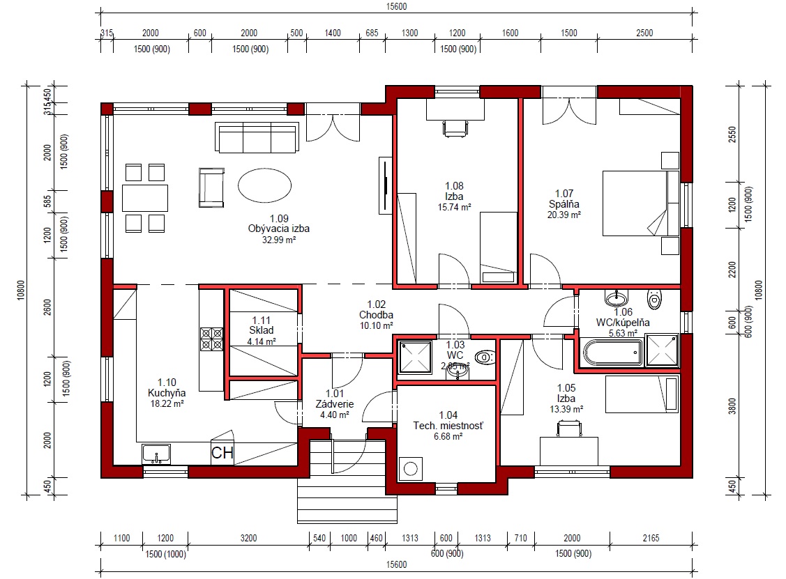
  • Úžítková plocha 135
  • Zrkadlový obraz áno
  • Cena výstavby domu 120 900€
  • Typ Bungalov
  • Počet miestností 4
  • Šírka domu 11 m
  • Zastavaná plocha domu 155 m2
  • Garáž 0

File Attachments

PD222-podorys.pdf Download

Kontakt