Projekt domu PD229

7090

Property ID

14 m2

Size

5

Bedrooms

149 000€

Popis

Pri tomto projekte ponúkame MOŽNOSŤ BEZPLATNEJ ZMENY DISPOZÍCIE! Pri každom projekte sme sa snažili vymyslieť tú najlepšiu dispozíciu aká je vzhľadom na vonkajší rozmer domu možná. Ale aj napriek tomu je často potrebné dispozíciu domu upraviť s ohľadom na osadenie domu na pozemok, preferencie klienta alebo stavebný systém. Ponúkame Vám preto možnosť bezplatnej zmeny dispozície každého nášho projektu tak aby vyhovoval vašim potrebám. Zmenou dispozície myslíme posuny nenosných priečok, zmenu umiestnenia a veľkosti okien, interiérových dverí a rozvodov inštalácií.
Cena výstavby uvedená pri projekte je za prevedenie kategórie A1 na kľúč, bez interiérového vybavenia, bez základov. Pre viac informácií a aktualizáciu ceny nás prosím kontaktujte.

Parametre

  • Cena projektu domu 1650 €
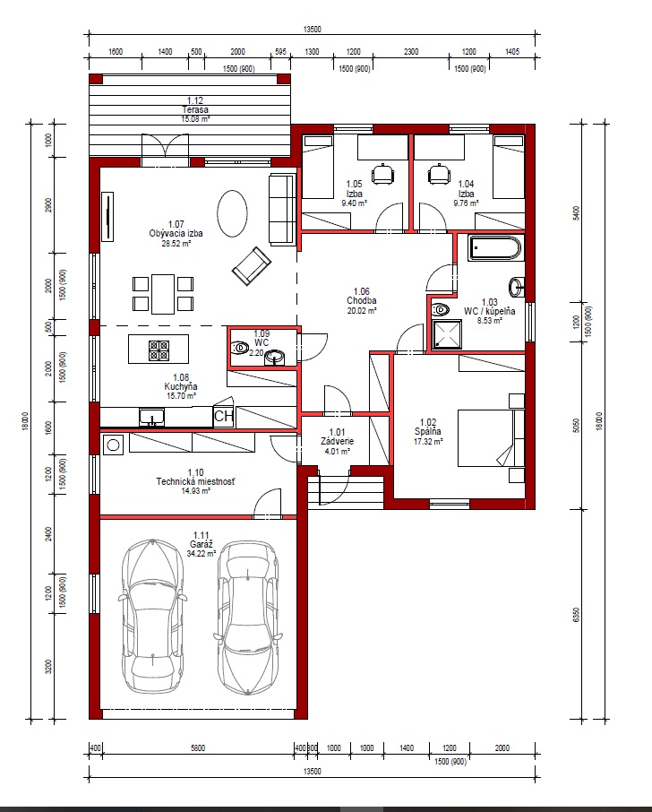
  • Úžítková plocha 164
  • Zrkadlový obraz áno
  • Cena výstavby domu 149 000€
  • Typ Bungalov
  • Počet miestností 5
  • Šírka domu 14 m
  • Zastavaná plocha domu 191 m2
  • Garáž 2

Kontakt