Projekt domu PD369

9587

Property ID

7 m2

Size

2

Bedrooms

58 590€

Popis

Pri tomto projekte ponúkame MOŽNOSŤ BEZPLATNEJ ZMENY DISPOZÍCIE! Všetky projekty je možné dodať ako energetickú triedu A0 alebo A1. Pri každom projekte sme sa snažili vymyslieť tú najlepšiu dispozíciu aká je vzhľadom na vonkajší rozmer domu možná. Ale aj napriek tomu je často potrebné dispozíciu domu upraviť s ohľadom na osadenie domu na pozemok, preferencie klienta alebo stavebný systém. Ponúkame Vám preto možnosť bezplatnej zmeny dispozície každého nášho projektu tak aby vyhovoval vašim potrebám. Zmenou dispozície myslíme posuny nenosných priečok, zmenu umiestnenia a veľkosti okien, interiérových dverí a rozvodov inštalácií. Cena výstavby uvedená pri projekte je za prevedenie kategórie A1 na kľúč, bez interiérového vybavenia, bez základov. Pre viac informácií a aktualizáciu ceny nás prosím kontaktujte.

Parametre

  • Cena projektu domu 990 €
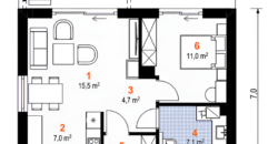
  • Úžítková plocha 48
  • Zrkadlový obraz áno
  • Cena výstavby domu 58 590€
  • Typ Bungalov
  • Počet miestností 2
  • Šírka domu 7 m
  • Zastavaná plocha domu 63 m2

Kontakt