Popis
Pri tomto projekte ponúkame MOŽNOSŤ BEZPLATNEJ ZMENY DISPOZÍCIE! Pri každom projekte sme sa snažili vymyslieť tú najlepšiu dispozíciu aká je vzhľadom na vonkajší rozmer domu možná. Ale aj napriek tomu je často potrebné dispozíciu domu upraviť s ohľadom na osadenie domu na pozemok, preferencie klienta alebo stavebný systém. Ponúkame Vám preto možnosť bezplatnej zmeny dispozície každého nášho projektu tak aby vyhovoval vašim potrebám. Zmenou dispozície myslíme posuny nenosných priečok, zmenu umiestnenia a veľkosti okien, interiérových dverí a rozvodov inštalácií.
Cena výstavby uvedená pri projekte je za prevedenie kategórie A1 na kľúč, bez interiérového vybavenia, bez základov. Pre viac informácií a aktualizáciu ceny nás prosím kontaktujte.
Parametre
- Cena projektu domu 1940 €
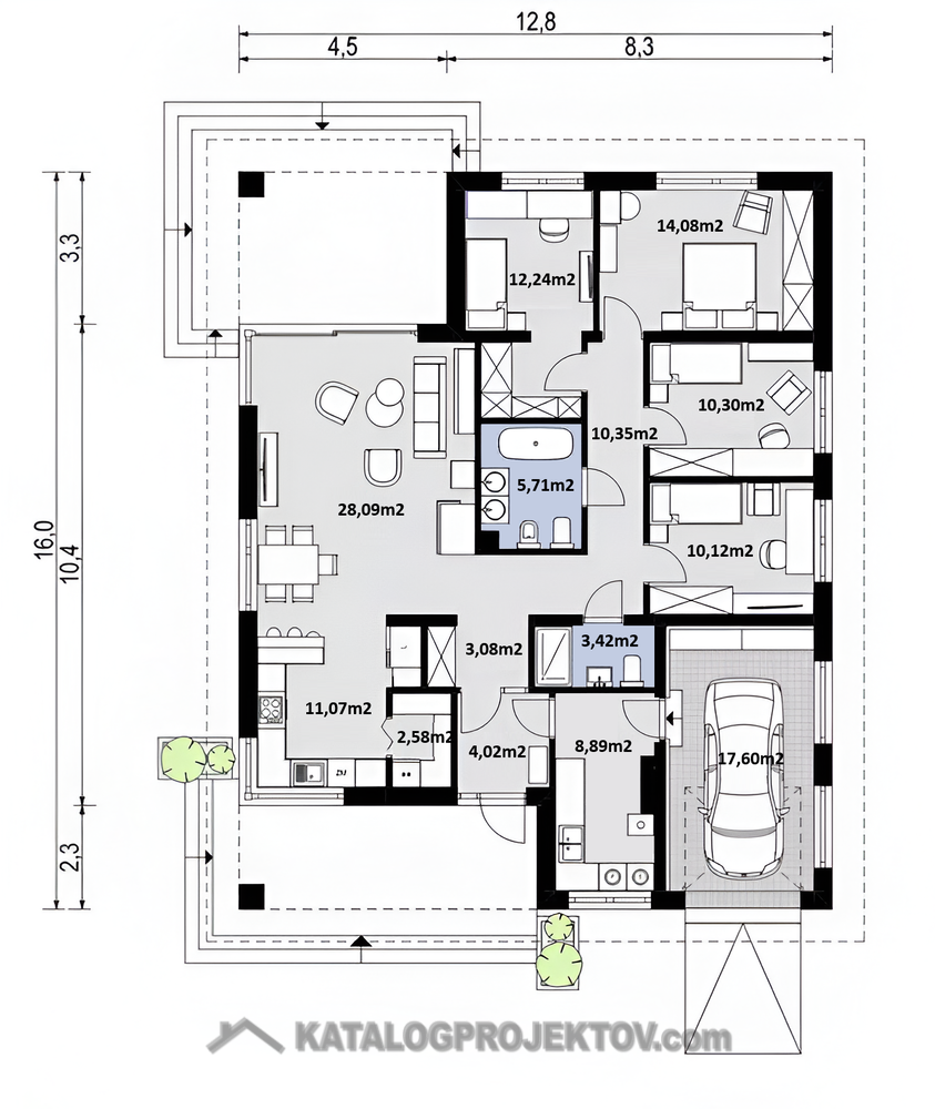
- Úžítková plocha 142
- Zrkadlový obraz áno
- Cena výstavby domu 151 600€
- Typ Bungalov
- Počet miestností 5
- Šírka domu 12 m
- Zastavaná plocha domu 176 m2
- Garáž 1