Projekt domu PD834

8147

Property ID

11 m2

Size

4

Bedrooms

108 900€

Popis

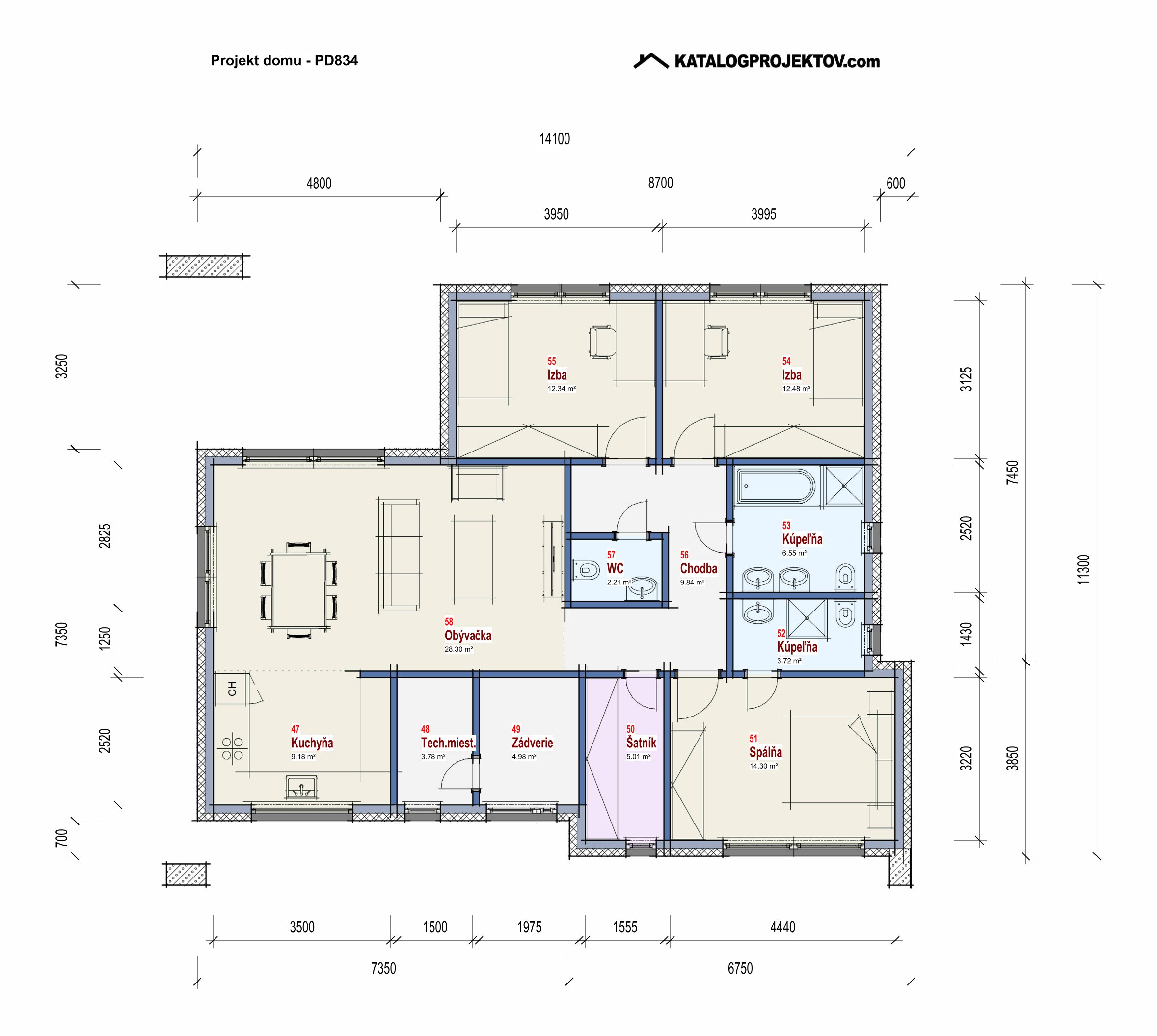
Pri tomto projekte ponúkame MOŽNOSŤ BEZPLATNEJ ZMENY DISPOZÍCIE! Pri každom projekte sme sa snažili vymyslieť tú najlepšiu dispozíciu aká je vzhľadom na vonkajší rozmer domu možná. Ale aj napriek tomu je často potrebné dispozíciu domu upraviť s ohľadom na osadenie domu na pozemok, preferencie klienta alebo stavebný systém. Ponúkame Vám preto možnosť bezplatnej zmeny dispozície každého nášho projektu tak aby vyhovoval vašim potrebám. Zmenou dispozície myslíme posuny nenosných priečok, zmenu umiestnenia a veľkosti okien, interiérových dverí a rozvodov inštalácií.
Cena výstavby uvedená pri projekte je za prevedenie kategórie A1 na kľúč, bez interiérového vybavenia, bez základov. Pre viac informácií a aktualizáciu ceny nás prosím kontaktujte.

Parametre

  • Cena projektu domu 1250
  • Úžítková plocha 127
  • Zrkadlový obraz áno
  • Cena výstavby domu 108 900€
  • Typ Bungalov
  • Počet miestností 4
  • Šírka domu 11 m
  • Zastavaná plocha domu 113 m2

Kontakt