Projekt domu PD883

8992

Property ID

10 m2

Size

4

Bedrooms

150 500€

Popis

Pri tomto projekte ponúkame MOŽNOSŤ BEZPLATNEJ ZMENY DISPOZÍCIE! Všetky projekty je možné dodať ako energetickú triedu A0 alebo A1. Pri každom projekte sme sa snažili vymyslieť tú najlepšiu dispozíciu aká je vzhľadom na vonkajší rozmer domu možná. Ale aj napriek tomu je často potrebné dispozíciu domu upraviť s ohľadom na osadenie domu na pozemok, preferencie klienta alebo stavebný systém. Ponúkame Vám preto možnosť bezplatnej zmeny dispozície každého nášho projektu tak aby vyhovoval vašim potrebám. Zmenou dispozície myslíme posuny nenosných priečok, zmenu umiestnenia a veľkosti okien, interiérových dverí a rozvodov inštalácií. Cena výstavby uvedená pri projekte je za prevedenie kategórie A1 na kľúč, bez interiérového vybavenia, bez základov. Pre viac informácií a aktualizáciu ceny nás prosím kontaktujte.

Parametre

  • Cena projektu domu 1860 €
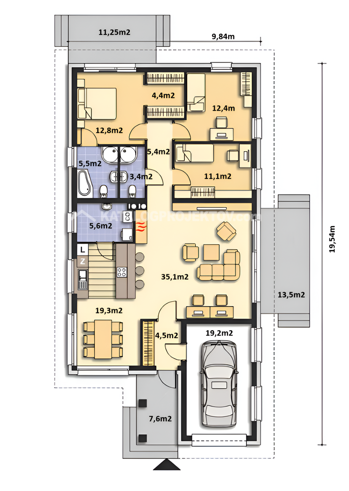
  • Úžítková plocha 139
  • Zrkadlový obraz áno
  • Cena výstavby domu 150 500€
  • Typ Bungalov
  • Počet miestností 4
  • Šírka domu 10 m
  • Zastavaná plocha domu 169 m2
  • Garáž 0

Kontakt