Projekt domu PD896

9106

Property ID

12 m2

Size

4

Bedrooms

176 400€

Popis

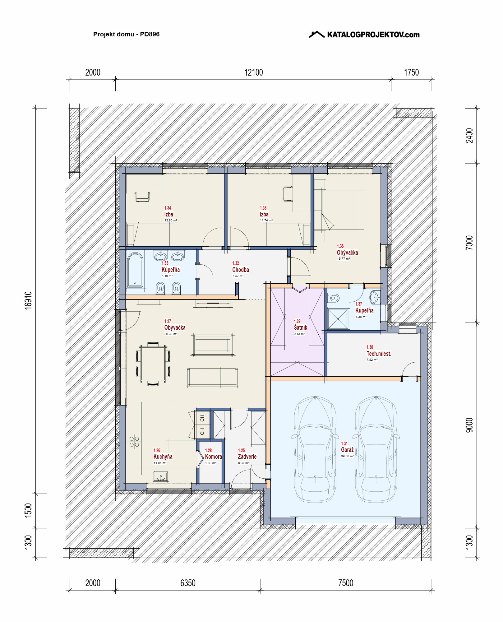
Pri tomto projekte ponúkame MOŽNOSŤ BEZPLATNEJ ZMENY DISPOZÍCIE! Všetky projekty je možné dodať ako energetickú triedu A0 alebo A1. Pri každom projekte sme sa snažili vymyslieť tú najlepšiu dispozíciu aká je vzhľadom na vonkajší rozmer domu možná. Ale aj napriek tomu je často potrebné dispozíciu domu upraviť s ohľadom na osadenie domu na pozemok, preferencie klienta alebo stavebný systém. Ponúkame Vám preto možnosť bezplatnej zmeny dispozície každého nášho projektu tak aby vyhovoval vašim potrebám. Zmenou dispozície myslíme posuny nenosných priečok, zmenu umiestnenia a veľkosti okien, interiérových dverí a rozvodov inštalácií. Cena výstavby uvedená pri projekte je za prevedenie kategórie A1 na kľúč, bez interiérového vybavenia, bez základov. Pre viac informácií a aktualizáciu ceny nás prosím kontaktujte.

Parametre

  • Cena projektu domu 2190 €
  • Úžítková plocha 164
  • Zrkadlový obraz áno
  • Cena výstavby domu 176 400€
  • Typ Bungalov
  • Počet miestností 4
  • Šírka domu 12 m
  • Zastavaná plocha domu 199 m2
  • Garáž 2

Kontakt